Shopauskunft 4.41 / 5,00 (382 Reviews)

User friendliness
Product range

Pricing
Order processing

Delivery
Service and support

Kunde
13.04.2026 to the SSD Armaturenshop rating profile
Zoran
28.03.2026 to the SSD Armaturenshop rating profile
Richter
26.03.2026 to the SSD Armaturenshop rating profile
Marc
23.03.2026 to the SSD Armaturenshop rating profile
Tilo
07.03.2026 to the SSD Armaturenshop rating profile
Gabor Gondi
20.02.2026 to the SSD Armaturenshop rating profile
Roland
16.02.2026 to the SSD Armaturenshop rating profile
Andre
06.02.2026 to the SSD Armaturenshop rating profile
siegfried
04.02.2026 to the SSD Armaturenshop rating profile
HH
15.01.2026 to the SSD Armaturenshop rating profile
Shopauskunft_logo
Shopauskunft
4.41 / 5,00
382 Reviews
Skip to main content Skip to search Skip to navigation
professional craftsmen professional craftsmen
extensive expertise extensive expertise
good price-performance ratio good price-performance ratio
Service Hotline: +49(0)34379484870 phone hours

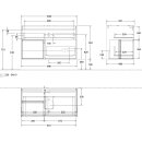
Villeroy & Boch F771HGHG Waschbeckenunterschrank Finion F77

1000x603x501mm m Bel FK/RE/AP: HG/HG/1
UVP 3.923,43 €
- 48.93%
2.003,60 €
Final price* , plus shipping costs
  • Delivery time: ca. 6 weeks
pie
Measuring and installation service for shower enclosures in germany
Right of withdrawal even for non-prefabricated goods
Buyer protection up to 20.000 €
Over 60.000 items in stock